Informazioni in evidenza

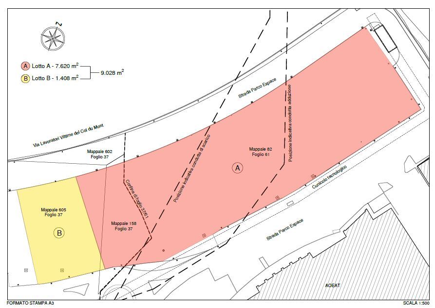
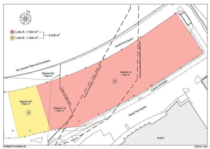
9.028 mqArea totale

87,00 %Indice di copertura massimo

15 mAltezza massima consentita

Posizione geografica

RegioneValle d'Aosta
ProvinciaAosta
ComuneAosta
Valle d'AostaPosizione Valle d'Aosta

Caratteristiche del sito

Denominazione area industriale Area Espace Aosta
Area totale9.028 mq
Indice di copertura massimo87,00 %
Altezza massima consentita15,00 m
Modalità acquisizione Affitto
Area in Zona Economica SpecialeNo
Area in Zona Logistica SemplificataNo
Area in Zona Franca DoganaleNo
Area di crisi industrialeNo

Infrastrutture e connessioni

Distanza dalla più vicina autostrada8,50 km
Distanza dalla più vicina stazione ferroviaria passeggeri2,70 km
Distanza dal più vicino porto industriale/commerciale295,00 km
Distanza dal più vicino aeroporto116,00 km
Distanza dal più vicino terminal ferroviario merci126,00 km

Galleria fotografica

Questo sito o gli strumenti da questo utilizzati si avvalgono di cookie necessari al funzionamento ed utili alle finalità illustrate nella cookie policy. Se vuoi saperne di più o negare il consenso ad alcuni cookie. Chiudendo questo banner o proseguendo con la navigazione acconsenti all'uso dei cookie.
Leggi la Policy Privacy