Informazioni in evidenza

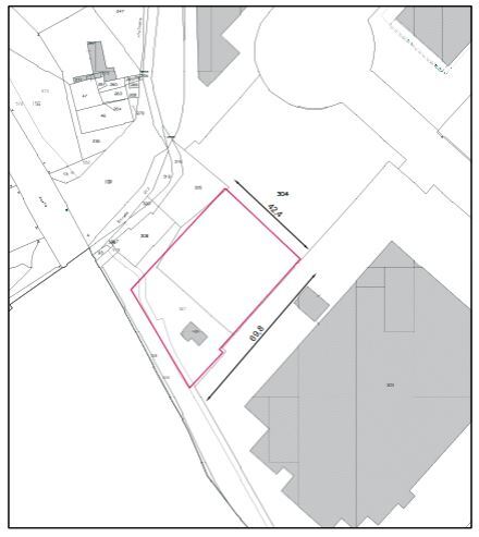
2.752 mqArea totale

50,00 %Indice di copertura massimo

10 mAltezza massima consentita

Posizione geografica

RegioneValle d'Aosta
ProvinciaAosta
ComunePont-Saint-Martin
Valle d'AostaPosizione Valle d'Aosta

Caratteristiche del sito

Denominazione area industriale Area industriale Ex-Illsa Viola
Area totale2.752 mq
Indice di copertura massimo50,00 %
Altezza massima consentita10,00 m
Modalità acquisizione Affitto
Area in Zona Economica SpecialeNo
Area in Zona Logistica SemplificataNo
Area in Zona Franca DoganaleNo
Area di crisi industrialeNo

Infrastrutture e connessioni

Distanza dalla più vicina autostrada0,85 km
Distanza dalla più vicina stazione ferroviaria passeggeri1,70 km
Distanza dal più vicino porto industriale/commerciale198,00 km
Distanza dal più vicino aeroporto68,50 km
Distanza dal più vicino terminal ferroviario merci86,70 km

Galleria fotografica

Questo sito o gli strumenti da questo utilizzati si avvalgono di cookie necessari al funzionamento ed utili alle finalità illustrate nella cookie policy. Se vuoi saperne di più o negare il consenso ad alcuni cookie. Chiudendo questo banner o proseguendo con la navigazione acconsenti all'uso dei cookie.
Leggi la Policy Privacy