Informazioni in evidenza

94.000 mqArea totale

30,00 %Indice di copertura massimo

12 mAltezza massima consentita

Posizione geografica

RegioneMolise
ProvinciaCampobasso
ComuneCampochiaro
MolisePosizione Molise

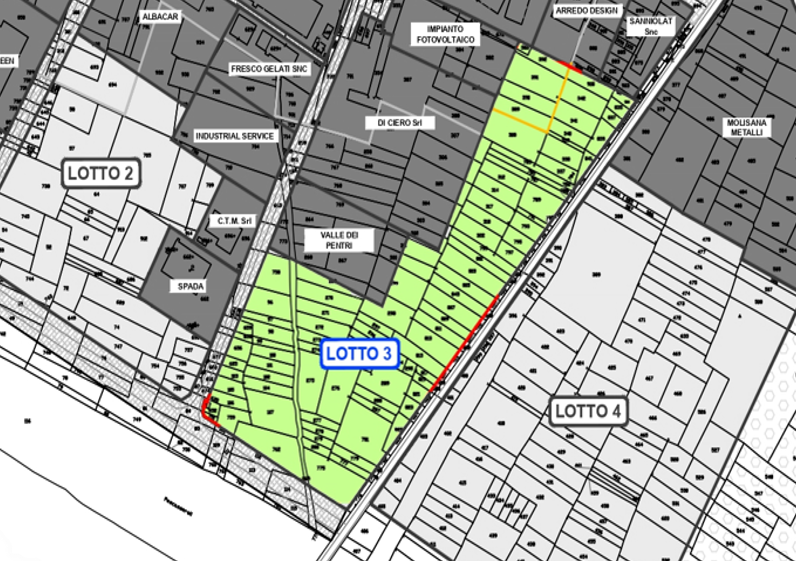
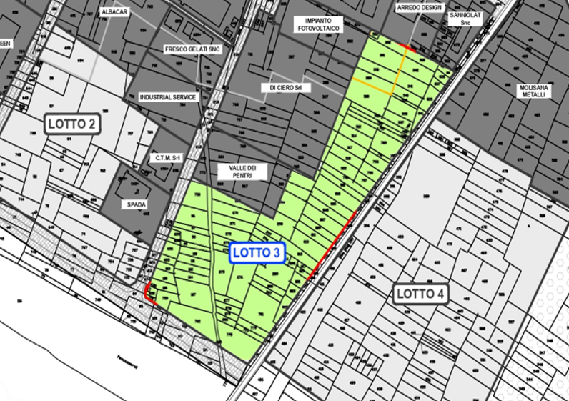
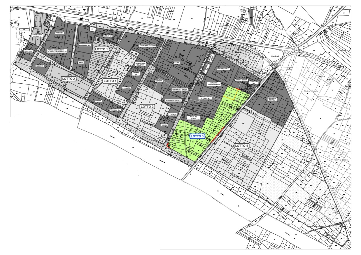
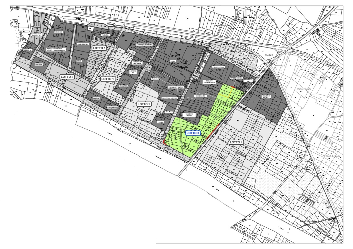
Caratteristiche del sito

Denominazione area industriale Consorzio per lo Sviluppo Industriale di Campobasso-Bojano
Area totale94.000 mq
Indice di copertura massimo30,00 %
Altezza massima consentita12,00 m
Modalità acquisizione Acquisto
Area in Zona Economica SpecialeSi
Area in Zona Logistica SemplificataNo
Area in Zona Franca DoganaleNo
Area di crisi industrialeSi

Infrastrutture e connessioni

Distanza dalla più vicina autostrada70,00 km
Distanza dalla più vicina stazione ferroviaria passeggeri0,50 km
Distanza dal più vicino porto industriale/commerciale80,00 km
Distanza dal più vicino aeroporto130,00 km
Distanza dal più vicino terminal ferroviario merci120,00 km

Galleria fotografica

Questo sito o gli strumenti da questo utilizzati si avvalgono di cookie necessari al funzionamento ed utili alle finalità illustrate nella cookie policy. Se vuoi saperne di più o negare il consenso ad alcuni cookie. Chiudendo questo banner o proseguendo con la navigazione acconsenti all'uso dei cookie.
Leggi la Policy Privacy