Informazioni in evidenza

8.036 mqArea totale

60,00 %Indice di copertura massimo

18 mAltezza massima consentita

Posizione geografica

RegioneLombardia
ProvinciaVarese
ComuneBusto Arsizio
LombardiaPosizione Lombardia

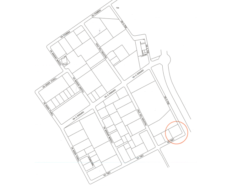
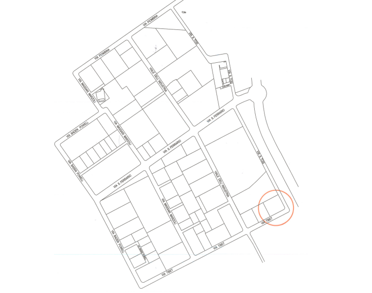
Caratteristiche del sito

Denominazione area industriale Piano Insediamenti Produttivi - Zona Industriale di Sud Ovest Sacconago
Area totale8.036 mq
Indice di copertura massimo60,00 %
Altezza massima consentita18,00 m
Modalità acquisizione Acquisto
Area in Zona Economica SpecialeNo
Area in Zona Logistica SemplificataNo
Area in Zona Franca DoganaleNo
Area di crisi industrialeNo

Infrastrutture e connessioni

Distanza dalla più vicina autostrada9,00 km
Distanza dalla più vicina stazione ferroviaria passeggeri5,00 km
Distanza dal più vicino porto industriale/commerciale175,00 km
Distanza dal più vicino aeroporto16,00 km
Distanza dal più vicino terminal ferroviario merci0,10 km

Galleria fotografica

Questo sito o gli strumenti da questo utilizzati si avvalgono di cookie necessari al funzionamento ed utili alle finalità illustrate nella cookie policy. Se vuoi saperne di più o negare il consenso ad alcuni cookie. Chiudendo questo banner o proseguendo con la navigazione acconsenti all'uso dei cookie.
Leggi la Policy Privacy