Informazioni in evidenza

20.392 mqArea totale

50,00 %Indice di copertura massimo

10 mAltezza massima consentita

Posizione geografica

RegionePiemonte
ProvinciaVercelli
ComuneRoasio
PiemontePosizione Piemonte

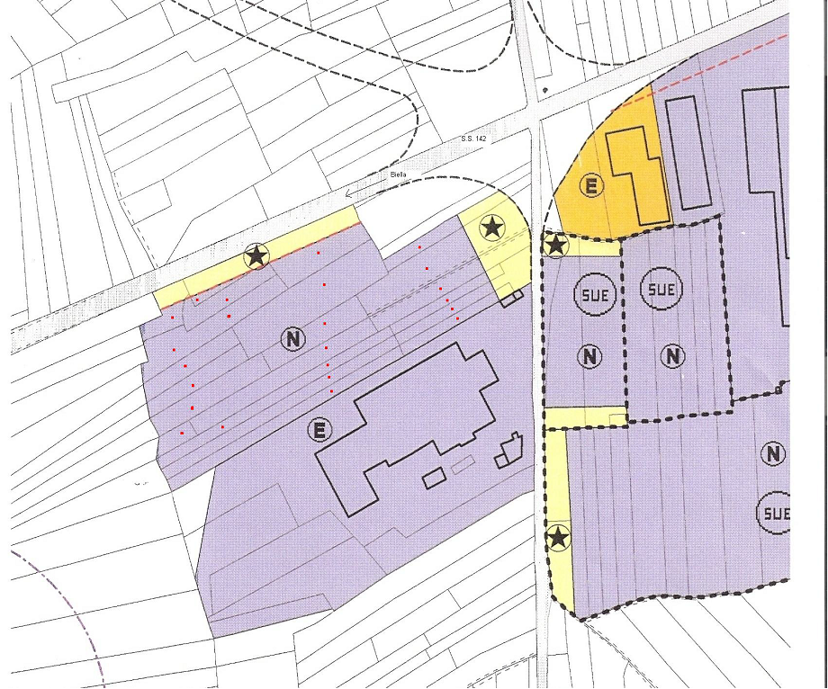
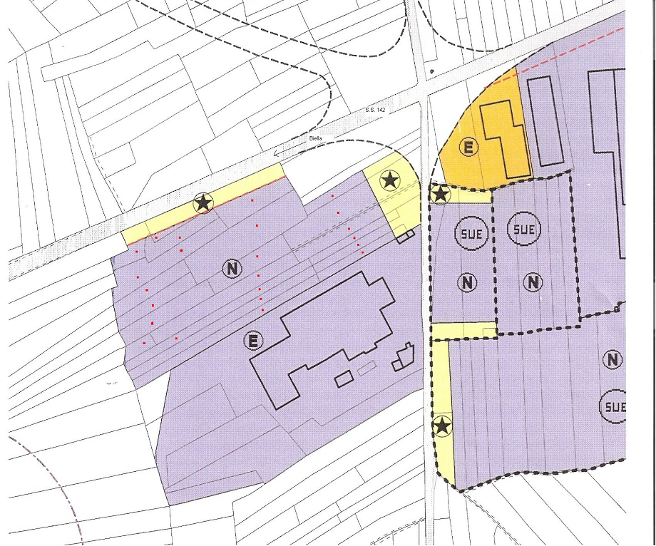
Caratteristiche del sito

Denominazione area industriale Area produttiva sita a Roasio
Area totale20.392 mq
Indice di copertura massimo50,00 %
Altezza massima consentita10,00 m
Modalità acquisizione Acquisto
Area in Zona Economica SpecialeNo
Area in Zona Logistica SemplificataNo
Area in Zona Franca DoganaleNo
Area di crisi industrialeNo

Infrastrutture e connessioni

Distanza dalla più vicina autostrada13,80 km
Distanza dalla più vicina stazione ferroviaria passeggeri10,00 km
Distanza dal più vicino porto industriale/commerciale170,00 km
Distanza dal più vicino aeroporto90,00 km
Distanza dal più vicino terminal ferroviario merci50,00 km

Galleria fotografica

Questo sito o gli strumenti da questo utilizzati si avvalgono di cookie necessari al funzionamento ed utili alle finalità illustrate nella cookie policy. Se vuoi saperne di più o negare il consenso ad alcuni cookie. Chiudendo questo banner o proseguendo con la navigazione acconsenti all'uso dei cookie.
Leggi la Policy Privacy