Verona - Verona
Greenfield
Informazioni in evidenza
1.500.000 mqArea totale
50,00 %Indice di copertura massimo
10 mAltezza massima consentita
Posizione geografica
| Regione | Veneto |
|---|---|
| Provincia | Verona |
| Comune | Verona |
Posizione Veneto
Caratteristiche del sito
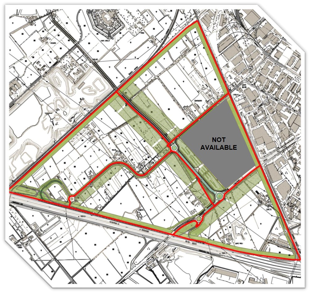
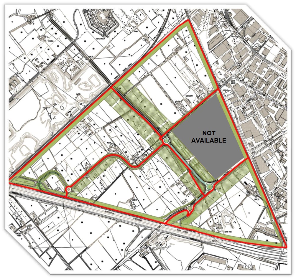
| Denominazione area industriale | Area C2 dell’Innovazione Marangona |
|---|---|
| Area totale | 1.500.000 mq |
| Indice di copertura massimo | 50,00 % |
| Altezza massima consentita | 10,00 m |
| Modalità acquisizione | Acquisto |
| Area in Zona Economica Speciale | No |
| Area in Zona Logistica Semplificata | No |
| Area in Zona Franca Doganale | No |
| Area di crisi industriale | No |
Infrastrutture e connessioni
| Distanza dalla più vicina autostrada | 3,00 km |
|---|---|
| Distanza dalla più vicina stazione ferroviaria passeggeri | 6,00 km |
| Distanza dal più vicino porto industriale/commerciale | 114,00 km |
| Distanza dal più vicino aeroporto | 3,00 km |
| Distanza dal più vicino terminal ferroviario merci | 3,00 km |


