Highlighted information

70,000 sq.mTotal size

30.00 %Maximum site coverage ratio

12 mMaximum allowed height

Geographic position

RegionMolise
ProvinceCampobasso
MunicipalityCampochiaro
MolisePosition Molise

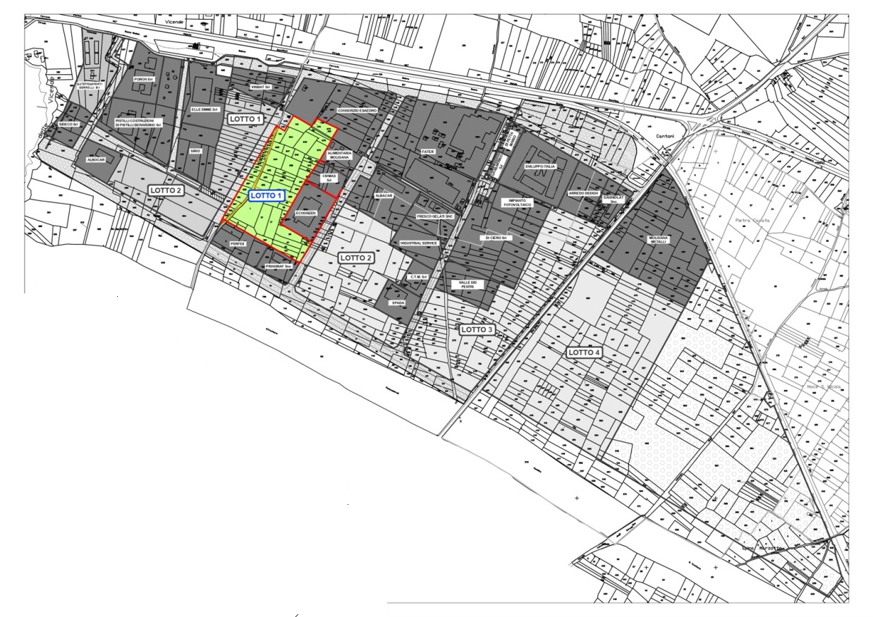
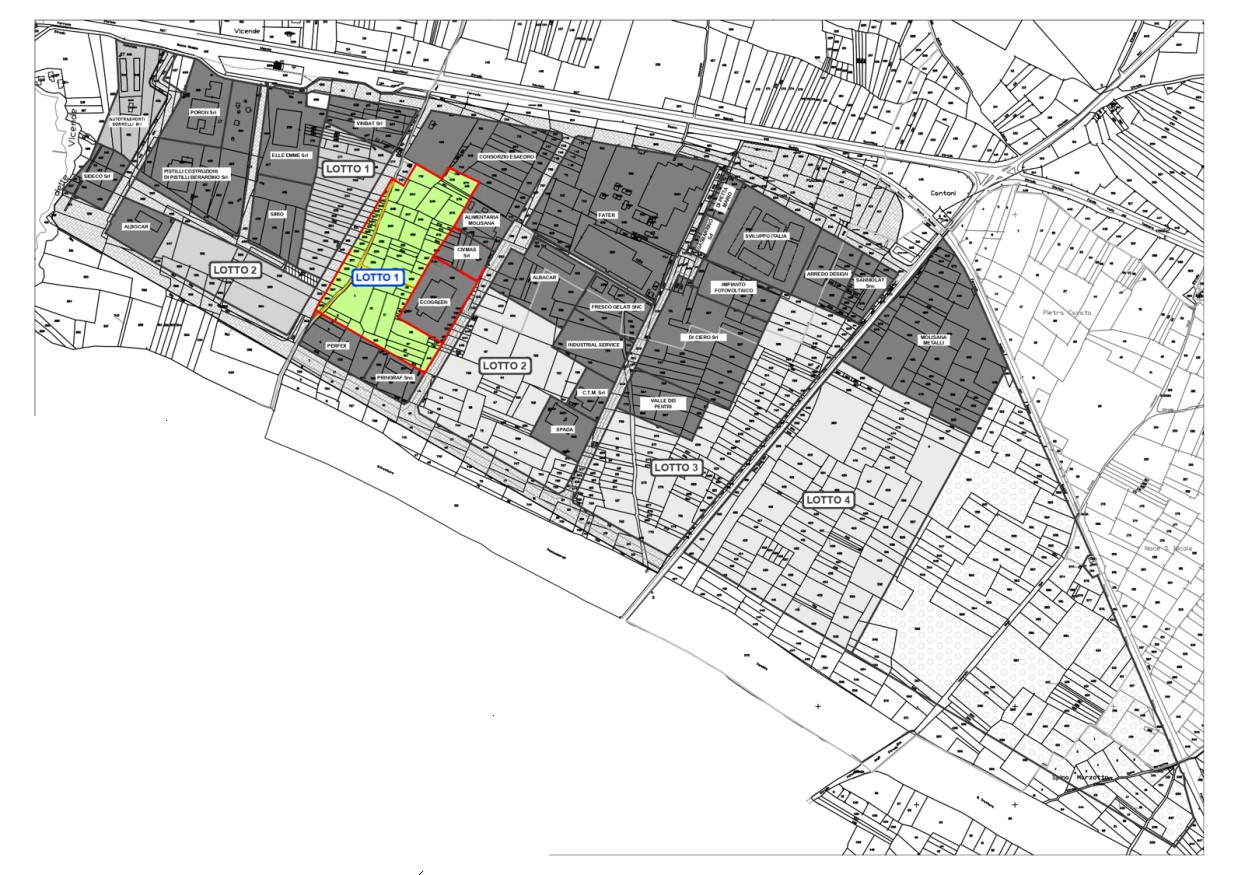
Site features

Industrial area nameCampobasso-Bojano Industrial Development Consortium
Total size70,000 sq.m
Maximum site coverage ratio30.00 %
Maximum allowed height12.00 m
Asset acquisition Sale of full ownership
Area in Special Economic ZoneYes
Area in Simplified Logistics ZoneNo
Area in Custom Free ZoneNo
Re-development industrial areaYes

Infrastructure and connections

Distance from the nearest highway70.00 km
Distance from the nearest passenger train station0.50 km
Distance from the nearest industrial/commercial port80.00 km
Distance from the nearest airport130.00 km
Distance from the nearest freight rail terminal120.00 km

Photo gallery

This site or the tools it uses make use of cookies necessary for operation and useful for the purposes illustrated in the cookie policy. If you want to know more or deny consent to some cookies. By closing this banner or continuing to browse, you consent to the use of cookies.
Read the Policy Privacy